
Multi-Discipline Engineering for All Industries
Stage-gated design process with collaborative 3D model reviews. Approval-, bid-, and construction-ready deliverables for steam, process heat, plant utilities, CHP, power generation, and energy use systems.
WHAT WE DESIGN
From Boiler Houses to Greenfield Plants
Engineering and design for new installations, retrofits, upgrades, and compliance projects across all industries.
Greenfield plant systems: complete boiler houses, fired heaters, CHP & power islands, CO₂ plants, and new facility infrastructure.
Brownfield retrofits and expansions: capture existing conditions, design new systems to fit tight clearances and active operations, balancing constructability, maintenance, and total cost of ownership.
Equipment and system upgrades: new boilers, burners, draft systems, emissions reduction, economizers, grate conversions, feedwater systems, and waste heat recovery.
Emissions and environmental compliance: SCR, SNCR, ESP, baghouse, DSI, activated carbon injection, wet scrubber, FGR systems, CEMS, and stack design to meet regulatory requirements.
Review, Bid, and Construction staged deliverables: drawing packages, bid specifications, bid administration, bid comparisons, material takeoffs, and shop-level detailing.
Advanced analysis and design code compliance: CFD, FEA, pipe stress analysis (B31.1 & B31.3), ASME pressure vessel design (Section I, VIII-1, VIII-2), NBIC, NFPA, AISC, AWS, etc.
DELIVERABLES
What a Design Package Includes
Scope varies by project. A typical multi-discipline package includes drawings, models, specifications, and lists coordinated across all trades.
Collaborative, Stage-Gated Engineering
Each stage gate includes 3D model review, clash detection and coordinated feedback across all trades before advancing.
Purposeful Design to Realized Performance
3D plant models built over laser-scanned point clouds, computational fluid dynamics, finite element analysis and full-facility visualization.






Comprehensive Design Packages
Specifications, instrument lists, control logic and procurement documents. A complete package from process definition through construction-ready details.
| Deliverable |
|---|
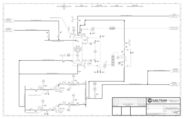
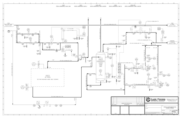
| P&IDs and PID Loops |
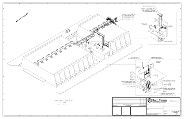
| General Arrangement Drawings |
| 3D Plant Model |
| Piping Isometrics |
| Foundation Drawings |
| Equipment Specifications |
DISCIPLINES
Seven Disciplines, One Coordinated Team
Each discipline produces its own deliverables while staying aligned through a shared design environment and cross-discipline reviews at key milestones.
Process
Heat and mass balance, P&IDs, process flow diagrams, boiler performance, fluid dynamics, boiler circulation, emissions calculations, cooling tower analysis, chiller analysis, process hazard analysis, and HAZOP.
Mechanical and Piping
Rotating equipment sizing and specifications (fans, pumps, compressors), CHP system sizing (reciprocating engines and turbines), boiler sizing, piping arrangement and isometrics, pipe stress analysis (Caesar II), and refractory and anchors design.
Structural and Civil
Structural steel engineering, structural steel arrangements and detailing, foundation and rebar design, site grading, drainage design, and sub-surface utilities (water, sewer, firewater, natural gas) design.
Electrical
One-line diagrams, cable schedules, MCC layouts, VFD specifications, power distribution, conduit routing, utility connection for power consumption or sell-back, switchgear sizing and specification, low and medium voltage design, arc flash study, short circuit analysis, and motor overload settings.
Instrumentation & Controls
Allen-Bradley PLC programming, HMI development, SAMA logic diagrams, I/O lists, instrument specifications, panel layouts, functional descriptions, controls narratives, trips/permissives/interlocks lists, BMS design, and combustion systems logic design.
Industrial
Plant layout optimization, equipment arrangement for maintenance access and operability, material and fuel flow analysis, conveyor and material handling system routing, egress and access planning, constructability reviews, and OSHA/regulatory compliance coordination.
3D Modeling, Design, and Reality Capture
2D Detailed Drawing Deliverables, AutoCAD Plant 3D modeling, Navisworks visualization on all projects, terrestrial laser scanning, and drone LIDAR/photogrammetry.
PROJECT EXAMPLES
Detailed engineering
project examples

Debottlenecking
Biochar Facility Debottlenecking & Capacity Expansion
A comprehensive pyrolysis yield analysis with heat and mass balance to identify process and equipment constraints and engineer a path for tripling biochar production capacity.

Power Boilers
BFB boiler for high-moisture biomass - South America
Complete BFB boiler design for a biomass facility in South America, handling high-moisture fuels with custom combustion and heat transfer engineering.
APPROACH
Typical Engineering Engagement
Phased delivery with design reviews at key milestones, ensuring alignment before progressing to construction.
Design Basis and Scope
Establish design criteria, applicable codes and standards, site conditions, project execution procedures, and interfaces with existing systems. Brownfield projects may include a site visit to collect relevant operational data and/or 3D laser scanning to capture existing conditions.
Multi-Discipline Engineering
Develop process, mechanical, electrical, structural, piping, and controls designs in parallel. Regular coordination reviews catch conflicts early across disciplines.
Drawing Reviews and Approvals
Collaborative design reviews at 30%, 60%, and 90% milestones with stakeholder input incorporated at each stage.
IFC Package and Bid Support
Issued-for-construction drawing packages, equipment specifications, and procurement evaluation support for equipment procurement.
Construction & Commissioning Support
Support for construction activities (remotely or onsite). Commissioning and tuning support to achieve commercial, optimized operation.
Project Closeout
As-built documentation and project debrief to recognize successes and collaborate on opportunities for improvement on future projects.
THE CPE DIFFERENCE
Engineers who design
these systems
CPE’s team designs, troubleshoots, and optimizes the systems they engineer. That experience carries into the drawings, specifications, and design reviews.
Scan-to-Design Capability
In-house terrestrial laser scanning and drone LIDAR allow CPE to capture existing conditions and design directly inside measured geometry when the project calls for it.
Boiler and Steam System Depth
CPE’s engineers design, troubleshoot, and optimize boiler and steam systems. That domain knowledge shows up in design decisions, from tube arrangement to pipe stress allowables.
Single-Source Multi-Discipline
All disciplines under one roof eliminates inter-firm coordination gaps and conflicting design criteria. One team, one set of standards.
Analysis-Informed Design
CFD (Ansys), FEA (Nastran, SolidWorks), and pipe stress (Caesar II) analysis inform design decisions early, before they become expensive changes in the field.
Have an engineering
question?
Tell us what you are working on and we will let you know how CPE can help.
OUR SERVICES
Engineering Depth Across the Project Lifecycle
From initial assessment through construction-ready deliverables - boilers, combustion systems, steam and condensate, emissions control, and energy infrastructure.











